【测评100套章丘房子】户型封神,为啥没人敢下手?
你会为了好户型,放弃成熟的配套吗?
之前我拍了一套华侨城130平的顶账房,没多久就卖了,好多人追着要同款好楼层,今儿还真给大伙找着一套,优缺点都极端,咱慢慢唠!
为啥说没人敢冲?我实诚把优缺点讲透,大家自己考量。
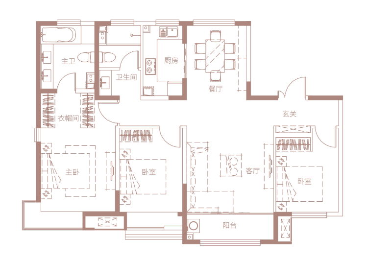
优点很突出:户型好、楼层佳。大家都看中的点:户型!客厅和卧室全朝南,还是中间楼层纯边户,拐角大飘窗,采光拉满,家里亮堂堂的。
你如果在章丘找好户型,就得选这种南北通透、南向面宽足的,住着才得劲。
缺点也明确:一是毛坯,得自己费心装修,二是顶账房手续上可能麻烦一点。这边现在附近只有个在建的四中绣源河校区南校,其他成熟配套目前还待建。
不介意毛坯和手续的话,这套值得重点盯。南向全明户型在章丘本就少见,一期非回迁安置的好楼层更是可遇不可求。
配套:诺德实验、四中绣源河校区南校
房子视频我已经拍了,感兴趣的找我要,同步小区最新成交行情,避开买卖房误区。或者你有房子也要卖,直接下方扫码找我就行!






游客